Przeglądarka z której korzystasz - Internet Explorer - nie jest wspierana przez nasz serwis. Żeby móc w pełni korzystać z serwisu zainstaluj inną przeglądarkę.
Konto Twojej firmy jest obecnie zablokowane. Żeby móc składać zamówienia skontaktuj się ze swoim opiekunem.

Automat zmierzchowy AZ-PLUS AZ-112-PLUS 230V/16A montaż na szynie DIN z zewnętrzną sondą hermetyczną | AZ-112-PLUS F&F

Rzeczywisty produkt może się różnić od pokazanego na zdjęciu
Producent
F&F
Kod
1031716
EAN
5908312591108
Kod Producenta
AZ-112-PLUS
Automat zmierzchowy AZ-PLUS AZ-112-PLUS 230V/16A montaż na szynie DIN z zewnętrzną sondą hermetyczną

Informacja o Produkcie

Do pobrania

Informacja o Produkcie

Alternatywny kod produktu: AZ-112 PLUS

Opis i Kluczowe Cechy

Automat zmierzchowy AZ-PLUS AZ-112-PLUS to zaawansowane urządzenie sterujące marki F&F, zaprojektowane do precyzyjnego zarządzania oświetleniem w zależności od natężenia światła naturalnego. Urządzenie pracuje pod napięciem znamionowym 230 V AC, wykazując wysoką tolerancję na wahania sieci w zakresie od -10% do +10%. Sercem automatu jest wydajny przekaźnik o maksymalnym prądzie obciążenia wynoszącym 16 A (kategoria AC-1), co pozwala na bezpośrednie sterowanie znacznymi odbiornikami energii bez konieczności stosowania dodatkowych styczników w wielu aplikacjach.

  • Szeroki zakres regulacji: Próg zadziałania jest regulowany płynnie w zakresie od 2 do 1000 Lx, co umożliwia dostosowanie momentu załączenia do specyficznych wymagań obiektu.
  • Separacja styku: Zastosowanie separacji styku (konfiguracja 1 × NO) zwiększa bezpieczeństwo instalacji i elastyczność podłączenia.
  • Inteligentna zwłoka czasowa: Opóźnienie włączenia (ok. 10 s) oraz wyłączenia (ok. 20 s) eliminuje ryzyko błędnego zadziałania urządzenia pod wpływem chwilowych zmian oświetlenia, takich jak błyskawice czy światła przejeżdżających pojazdów.
  • Energooszczędność: Pobór mocy na poziomie zaledwie 0,56 W sprawia, że urządzenie jest wyjątkowo ekonomiczne w eksploatacji ciągłej.
  • Kompaktowa obudowa: Szerokość wynosząca zaledwie 1 moduł (18 mm) pozwala na znaczną oszczędność miejsca w rozdzielnicy elektrycznej.

Zgodność z Normami

Produkt został zaprojektowany i wykonany zgodnie z najwyższymi standardami branżowymi. Zewnętrzna sonda typu PLUS charakteryzuje się stopniem ochrony IP65, co gwarantuje pełną pyłoszczelność oraz odporność na strugi wody, umożliwiając bezpieczny montaż na elewacjach budynków. Sam moduł sterujący posiada stopień ochrony IP20, co jest standardem dla aparatury modułowej montowanej wewnątrz rozdzielnic. Urządzenie przystosowane jest do pracy w szerokim zakresie temperatur od -25°C do +50°C, co potwierdza jego niezawodność w trudnych warunkach klimatycznych.

Zastosowanie

Automat AZ-112-PLUS znajduje szerokie zastosowanie w sektorze komercyjnym, przemysłowym oraz prywatnym. Jest idealnym rozwiązaniem do automatycznego sterowania oświetleniem ulicznym, ogrodowym, parkingowym oraz iluminacją witryn sklepowych i reklam. Dzięki wysokiej obciążalności 16 A, świetnie sprawdza się w systemach oświetlenia zewnętrznego budynków biurowych i hal magazynowych, gdzie kluczowe jest załączanie świateł dokładnie o zmierzchu i ich wyłączanie o świcie w celu optymalizacji kosztów energii elektrycznej.

Wskazówki Montażowe

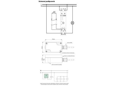
Montaż urządzenia powinien być przeprowadzony przez wykwalifikowanego elektryka. Automat przeznaczony jest do instalacji na standardowej szynie montażowej DIN 35 mm. Przyłącze elektryczne realizowane jest poprzez solidne zaciski śrubowe o przekroju znamionowym 2,5 mm², co pozwala na stabilne przesyłanie energii i pewny styk. Podczas dokręcania przewodów należy zachować zalecany moment dokręcający wynoszący 0,4 Nm, aby uniknąć uszkodzenia zacisków lub niedostatecznego kontaktu. Zewnętrzną sondę PLUS należy umieścić w miejscu o stałym dostępie do światła dziennego, unikając bezpośredniego oświetlania jej przez sterowane źródło światła, co mogłoby powodować cykliczne załączanie i wyłączanie odbiornika.

FAQ

  • Czy sonda zewnętrzna jest częścią zestawu? Tak, w komplecie z automatem AZ-112-PLUS znajduje się dedykowana zewnętrzna sonda światłoczuła typu PLUS o stopniu ochrony IP65.
  • Jaki jest fabryczny próg zadziałania? Urządzenie posiada fabrycznie ustawiony próg zadziałania na poziomie około 7 Lx, który użytkownik może samodzielnie skorygować.
  • Czy urządzenie posiada histerezę? Tak, automat posiada wbudowaną histerezę wynoszącą około 15 Lx, co zapobiega oscylacjom przekaźnika przy powolnych zmianach natężenia światła.
  • Czy mogę podłączyć urządzenie do instalacji 12V? Nie, prezentowany model jest przeznaczony wyłącznie do zasilania napięciem 230 V AC.
  • Producent F&F
  • Wymiary 0.096m x 0.058m x 0.099m
  • Seria producenta Automaty zmierzchowe - AZ
Wyłącznik zmierzchowy modułowy
  • Napięcie znamionowe 230 V
  • Częstotliwość znamionowa 50 - 50 Hz
  • Maksymalna zdolność łączeniowa dla żarówek 0.8 W
  • Maksymalna zdolność łączeniowa dla świetlówek 550 VA
  • Maksymalna zdolność łączeniowa dla świetlówek (kompensacja DUO) 1000 VA
  • Maksymalna zdolność łączeniowa dla świetlówek (z kompensacją równoległą) 800 VA
  • Znamionowy prąd załączania 16 A
  • Zakres regulacji jasności 2 - 1000 lx
  • Maksymalna długość przewodu czujnika 2.5 m
  • Klasa ochronności czujnika I
  • Sposób montażu czujnika Inne
  • Sposób montażu Szyna DIN
  • Szerokość wyrażona liczbą modułów 2
  • Stopień ochrony (IP) IP20
  • Stopień ochrony (IP) czujnika IP65

Podmiot odpowiedzialny

Pokaż/Ukryj

Adres:

Dane kontaktowe:

Wszystkie obrazy

Produkty, które mogą Cię zainteresować: